Липецкая область
"Физкультурно-оздоровительный комплекс по адресу: Липецкая область, г.Данков, ул.Островского, земельный участок 4/1"
Мощность в ед. - 156 мест
Сроки строительства по соглашению - 05.05.26 - 01.12.27
ID 7938
Строительство сетей водоотведения мкрн. Северо-Западный в г. Лебедянь
Мощность в ед. - 10090 м
Сроки строительства по соглашению - 04.05.26 - 01.12.26
ID 7933
Модернизация и реконструкция систем теплоснабжения с применением энергосберегающих оборудования и технологий по ул. Шоссейный пр-д в г. Лебедянь
Мощность в ед. - 660 м
Сроки строительства по соглашению - 04.05.26 - 01.12.26
ID 7932
Реконструкция сети водоснабжения ул. Ленина г. Лебедянь
Мощность в ед. - 1739.7 м
Сроки строительства по соглашению - 04.05.26 - 01.12.26
ID 7930
Реконструкция сетей водоснабжения ул. Желябова с.Доброе , Добровского округа
Мощность в ед. - 1640 м
Сроки строительства по соглашению - 01.03.26 - 01.12.26
ID 7929
Строительство котельной для начальной школы с. Доброе (микрорайон "Молодежный") и технологическое присоединение к газовым, электрическим сетям и источникам резервного питания
Мощность в ед. - 215 гкал/час
Сроки строительства по соглашению - 04.05.26 - 01.12.26
ID 7928
Строительство здания МАУ ДО "Детская школа искусств" Елецкого муниципального района Липецкой области
Мощность в ед. - 204 мест
Сроки строительства по соглашению - 15.04.26 - 10.02.28
ID 7904
«Система хозяйственно-бытовой канализации с очистными сооружениями районного центра с. Доброе в Липецкой области» (2 этап)
Мощность в ед. - 750 куб.м./сутки
Сроки строительства по соглашению - 11.10.25 - 14.11.25
ID 7450
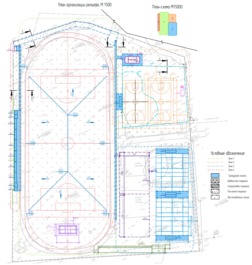
Реконструкция стадиона "Машиностроитель" в г. Лебедянь
Мощность в ед. - 21827 кв.м
Сроки строительства по соглашению - 15.10.25 - 08.12.26
ID 7449
Строительство разведочно-эксплуатационной скважины с. Ленино, сельского поселения Ленинский сельсовет, Липецкого муниципального района/Липецкая область, Липецкий муниципальный округ, с. Ленино/240 куб.м/сут.
Мощность в ед. - 240 куб.м./сутки
Сроки строительства по соглашению - 15.12.25 - 30.11.26
ID 7438
Строительство водопроводных сетей с. Ленино, ул. Тамбовская, ул. Солнечная Долина, ул. Тенистая, ул. Прохладная, ул. Кленовая, ул. Каштановая, ул. Сосновая, ул. Виноградная, ул. Симферопольская, ул. Крымская, ул. Южная, сельского поселения Ленинский сельсовет Липецкого муниципального района/Липецкая область, Липецкий муниципальный округ, с. Ленино/240 куб.м/сут.
Мощность в ед. - 240 куб.м./сутки
Сроки строительства по соглашению - 15.12.25 - 30.11.26
ID 7437
Реконструкция водозабора г. Усмань
Мощность в ед. - 8400 куб.м./сутки
Сроки строительства по соглашению - 05.05.25 - 30.08.27
ID 6908
Модернизация системы водоснабжения с. Черкассы Елецкого района Липецкой области
Мощность в ед. - 5473.77 м
Сроки строительства по соглашению - 01.04.25 - 28.12.26
ID 6979
Строительство сетей водоотведения в рамках комплексного развития территории микрорайона «Северо-восточный» городского поселения г. Усмань Липецкой области
Мощность в ед. - 2732 м
Сроки строительства по соглашению - 01.04.25 - 29.07.26
ID 6895
Строительство водозабора в рамках модернизации систем водоснабжения двадцати населенных пунктов Добровского муниципального района с целью обеспечения качественной питьевой водой – 1-й этап 1 очередь - строительство участка водопровода Новоселье-Капитанщино с водозабором в границах сельского поселения Замартыновский сельсовет
Мощность в ед. - 10641 куб.м./сутки
Сроки строительства по соглашению - 01.04.25 - 19.12.25
ID 6885
«Реконструкция водопроводной сети », по адресу: Липецкая область, г. Чаплыгин, ул. С. Тянь-Шанского, ул. Школьная, ул. К. Маркса, городской парк, пл. Октябрьской революции
Мощность в ед. - 3380 м
Сроки строительства по соглашению - 01.04.25 - 26.12.25
ID 6817
Строительство 3-х этажного 36-ти квартирного жилого дома, расположенного по адресу: Липецкая область, с. Тербуны, ул. 65 лет Победы, на земельном участке с кадастровым номером 48:15:0951103:1913
Мощность в ед. - 36 квартир
Сроки строительства по соглашению - 03.03.25 - 01.12.26
ID 6726
Строительство здания на 240 койко-мест в ОБУ «Геронтологический центр Липецкой области», расположенного по адресу: г. Липецк, ул. Механизаторов, д. 21
Мощность в ед. - 240 мест
Сроки строительства по соглашению - 01.04.25 - 30.05.29
ID 6201
Строительство ледового дворца в г. Лебедянь
Мощность в ед. - 3337.4 кв.м
Сроки строительства по соглашению - 01.05.25 - 01.12.26
ID 6198
Строительство начальной школы с. Доброе (микрорайон "Молодежный")
Мощность в ед. - 100 мест
Сроки строительства по соглашению - 01.05.25 - 01.12.26
ID 6197
Поликлиника Государственное учреждение здравоохранения "Становлянская районная больница"
Мощность в ед. - 170 мест
Сроки строительства по соглашению - 02.12.24 - 01.12.25
ID 6195
Производственный комплекс на территории ОЭЗ ППТ «Липецк», г.Грязи
Мощность в ед. - 82005.43 кв.м
Сроки строительства по соглашению - 14.05.24 - 30.12.27
ID 5944
Жилой корпус на 100 койко-мест в ОГБУ «Елецкий дом-интернат для престарелых и инвалидов», расположенный по адресу: Липецкая область, г. Елец, ул. Пригородная, 55а
Мощность в ед. - 100 мест
Сроки строительства по соглашению - 01.09.24 - 30.05.26
ID 5912
Трехэтажная пристройка к зданию МБОУ СОШ № 1 с. Измалково Измалковского района Липецкой области
Мощность в ед. - 250 мест
Сроки строительства по соглашению - 02.02.24 - 10.11.25
ID 5623
Строительство многофункционального общественного центра с Доброе Добровского муниципального района
Мощность в ед. - 200 мест
Сроки строительства по соглашению - 01.05.24 - 01.12.26
ID 5696
Система хозяйственно-бытовой канализации с очистными сооружениями районного центра с. Доброе в Липецкой области
Мощность в ед. - 750 куб.м./сутки
Сроки строительства по соглашению - 01.05.24 - 30.06.26
ID 5694